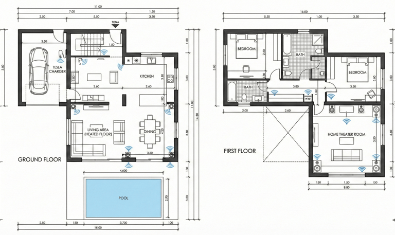
Tecnologia que transforma espaços
Na AUTOM, integramos inteligência e inovação para dar vida a projetos arquitetônicos que conversam com o futuro.


150+
clientes
Projetos
Transformamos ideias em infraestrutura tecnológica.


Planejamento tecnológico: Para quem isso realmente importa?
Para o Arquiteto
Garante menos retrabalho, elimina conflitos com fornecedores no canteiro e mantém o controle total sobre a estética e funcionalidade do projeto original.
Para o Cliente
Proporciona menos desperdício financeiro, máximo conforto operacional e uma valorização real e mensurável do imóvel no mercado de alto padrão.
Para a Obra
Resulta em uma execução orientada por projetos executivos claros, padronizados e absolutamente sem improvisos técnicos ou atrasos desnecessários.
Nosso Impacto
Ajudamos arquitetos e construtoras a antecipar desafios tecnológicos, reduzindo riscos e preparando cada projeto para as demandas futuras de conectividade e inovação.




